PROPERTY DETAILS物件詳細

新築建売住宅 中西町 2 建売住宅

販売価格2,690万円(税込)

  • 住所宮崎市中西町197番地13
  • 土地面積145.95m²(44.14坪)
  • 築年月令和7年6月
  • 建物面積99.21m²(30.01坪)
  • 交通宮崎交通バス 一の宮バス停まで徒歩8分
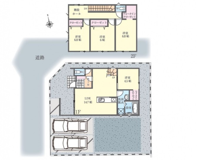
  • 間取り4LDK+wic
セールスポイント
特徴
  • ZEH水準 エネルギー消費性能等級3
  • 断熱性能 5を達成している住宅です。
  • 夏涼しく冬温かい快適な住まい♪
セールスコメント 近隣にスーパー、ドラッグストア、病院など施設が多数あり利便性抜群!
生活しやすい環境です。
駐車場スペースも4台あって来客用としても使用できますね!
物件情報
採光面
構造/階数 木造/2階建て
建ぺい率 60%
容積率 200%
駐車場 有 4台
現況/引渡し 空家/即時
土地権利 所有権
私道負担面積
接道状況 北側5m公道 約10m  西側約4m私道 約9m
用途地域 第1住居専用地域 /第2住居専用地域
セットバック
法令上の制限
地目
地勢
建築確認番号
都市計画 市街化区域
取引形態 仲介
情報更新 2025年10月09日
※各種情報と差異がある場合は現況優先となります。
学区情報
小学校区 潮見小学校(約976m / 13分)
中学校区 宮崎中学校(約1361m / 18分)
※物件情報の学区情報について
通学区域(学区)は毎年見直しの対象となりますので、学区情報は参考としてご活用ください。
地図情報
お問い合わせ、資料請求、見学のお申し込みはこちらから
  • 【電話でのお問い合わせ】
  • 0985-63-0017

お問い合わせ

和光産業本店のHPはこちら